站群导航

海南州人民政府

政府工作部门

各县政府

|
加入收藏
|
设为首页
|
手机版

同德县人民政府

政府信息公开

索引号: 3070211020000103000000/2025121500001234 发布机构:
生效日期: 2025-12-15 废止日期:
文 号: 所属主题: 同德文件

同德县人民政府办公室关于印发《同德县2025年农牧民居住条件改善工程实施方案》的通知

来源: 发布时间:2025-12-15 浏览次数: 【字体:

 

各乡镇人民政府,县政府各有关部门

《同德县2025年农牧民居住条件改善工程项目实施方案》已经第十七届县政府第58次党组会议研究通过,现印发给你们,请认真抓好贯彻落实。

 

同德县人民政府办公室   

202559      

 

同德县2025年农牧民居住条件改善工程

实施方案

 

为深入贯彻落实乡村振兴战略和省委“一优两高”战略部署,加快改善全县农牧区人居环境,综合考虑我县农牧民居住房节能保温实际需求,根据《关于推进全省农牧民居住条件改善工程的实施方案》(青政办〔2019〕42号)青海省住房和城乡建设厅《关于下达2025年全省农牧民居住条件改善工程建设任务的通知》(青建村〔2025〕49号)要求,结合我县实际,制定同德县2025年农牧民居住条件改善工程实施方案。

一、工作目标

以习近平新时代中国特色社会主义思想为指导,在尊重农民安居需求和房建设实际的基础上,通过实施农民居住条件改善工程,建设一批功能现代、风貌乡土、节能保温、结构安全、村庄环境整洁的宜居型农民住房,推进农住房品质有效改善,村容村貌全面提升,农村生态环境得到有效改善。

二、建设任务

按照青海省住房和城乡建设厅《关于下达2025年全省农牧民居住条件改善工程建设任务的通知》(青建村〔2025〕49号)文件,2025年我县省级任务500户、江苏援建指标任务100户、历年结余资金实施38户,共计指标任务638户。具体计划分解下达任务为:唐谷镇270户(扎血尔村100户、青迈村80户、力伦村90户),秀麻乡190户(豆龙村100户、达哇村90户),河北乡赛羊村83户,巴沟乡然果村21户,尕巴松多镇科加村共74户(其中38户历年居住条件改善工程结余资金75万元解决

民居住条件改善工程县政府负主体责任,乡(镇)和村委为具体实施单位。成立推进农牧民居住条件改善工程领导小组,由分管住建副县长任组长,县住房和城乡建设局局长任副组长,县发展改革工业信息化和商务局、县财政局、县自然资源和林业草原局、县农牧水利和科技局、县审计局、各乡镇政府负责同志为成员,领导小组办公室设在县住房和城乡建设局负责做好全县农民居住条件改善工程工作统一安排、统筹谋划、工作协调等。项目完工后由办公室组织各相关成员单位逐户验收。

、主要建设范围、内容及标准。

(一)实施范围。县内重要交通干线两侧、重要旅游景区及城镇周边村庄为主要实施范围。优先考虑城乡结合部、乡镇驻地村庄和经济条件相对较好、带动能力较强、群众参与意愿强烈的村庄。按照集中连片、整村推进的要求,项目实施村庄集中点范围内的庄院和住房均应纳入改造范围,享受奖补政策。

(二)实施内容。根据省住建厅印发的《关于推进全省农牧民居住条件改善工程的实施方案》(青政办〔2019〕42号)要求,应依据我县既有住房实际情况,遵循“缺什么、补什么”的原则,主要实施住房围护结构保温、屋面防水、太阳能暖廊等重点类项目和庭院整治、风貌提升引导类项目。要注重传统建筑和历史建筑的保护,对于传统建筑不能开展外墙保温的,可选择其他建筑方式。在保证实施重点类建设项目的基础上再开展引导类项目的建设。

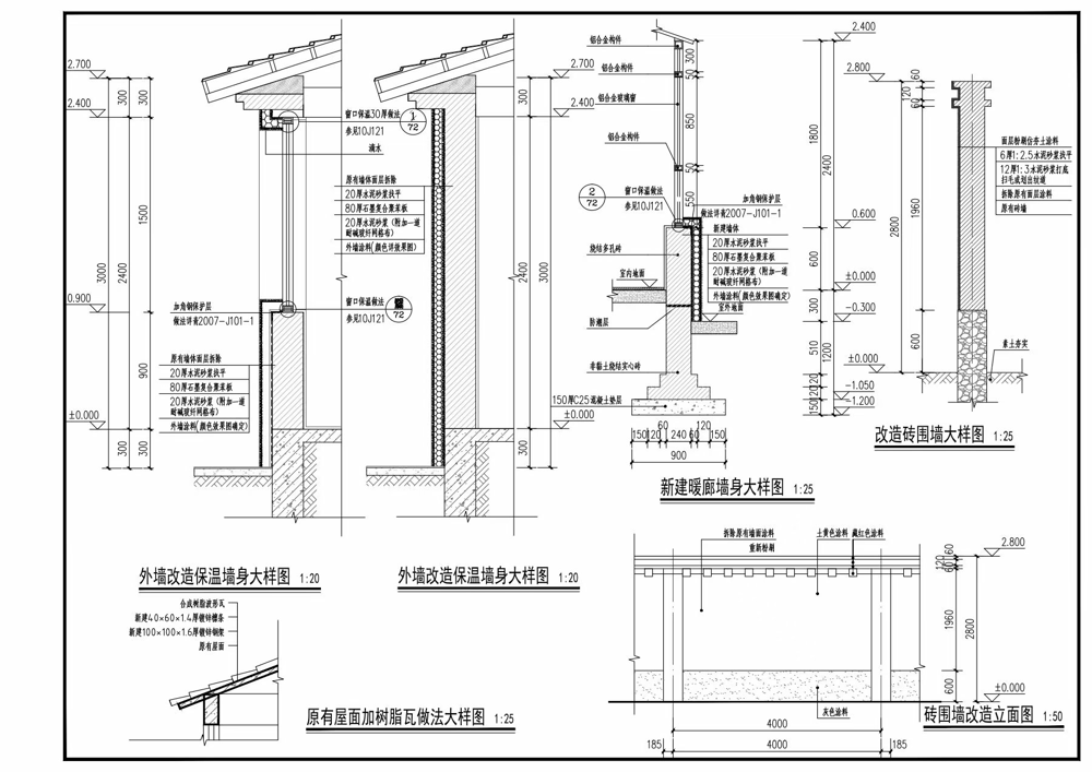
(三)建设指导标准。住房外墙保温:60厚石墨聚苯板(18kg/㎡)+玻纤网格布+水泥砂浆抹灰+墙裙60公分采用石墨聚苯板一体板被动式太阳能暖廊:红木纹色铝塑(铝合金)0.7mm,单层双层玻璃自选(农牧户);屋顶保温防水:合成树脂瓦厚度2.8mm。庭院整治、风貌提升(院墙粉刷,墙体颜色整村统一)。

、资金来源及补助标准

(一资金来源农牧民居住条件改善工程以群众投入为主,政府给予一定比例补助同德县2025年农牧民居住条件改善工程项目补助总投资为1275万元。其中:省级资金750万元,州级江苏援建配套资金210万元。省州在补助基础上落实县级配套资金240万元,历年居住条件改善工程结余资金75万元。

补助资金以户为单位,按实际实施项目工程量进行核算后,以实际投入建设成本给予一定比例补助,其余由农牧民自筹资金或投工投劳等方式解决。

)补助标准。按照省住建厅《关于推进全省农牧民居住条件改善工程的实施方案》(青政办〔2019〕42号)要求,分为重点推进项目和引导类项目:1.重点类项目补助比例原则上不高于建设总成本的35%。外墙保温指导价170元/㎡,最大补助面积100㎡;②被动式太阳能暖廊指导价760元/㎡,最大补助面积30㎡(暖廊地面面积),③屋顶防水指导价180元/㎡,最大补助面积100㎡.其余由农牧民自筹资金。2.引导类项目补助不高于建设总成本的25%的比例予以奖补(院墙风貌提升改造①指导价60元/㎡、补助面积100㎡)。其余资金由农牧民自筹资金。

建设任务完成后,由村委和乡镇逐户验收通过,再申请县级领导小组验收,领导小组对现场及一户一档资料验收合格后,到户补助资金在15个工作日内通过“一卡通”方式直拨到户。

、工作要求

)加强组织领导,明确工作责任。同德县农牧民居住条件改善工程项目领导小组办公室统筹负责,做好全县农民居住条件改善工作统筹协调和检查验收等工作。县住房和城乡建设局负责年度计划制定和任务下达,并做好农民居住条件改善工程的指导与监督;财政、发改、审计等相关部门切实发挥职能作用,做好行业监管和监督指导,共同推进农民居住条件改善工作。乡(镇)要及时成立相应的领导机制,按照本方案要求促进政策落实确保农民居住条件改善工程顺利实施各相关部门要在项目完工后联合逐户做好竣工验收工作

明确责任制度,严格规范管理。建设村村委会要组织项目实施户认真填写《农牧民居住条件改善工程入户调查及项目确认表》,在前期申报调查的基础上再次入户确认,逐户组织开展住房现状调查评估,确定项目实施户,核定项目建设内容,明确建设范围,测算工程量,签订项目协议书。已签订的协议书和建设任务不得随意调整,确需变更调整的,要履行审批手续。按照四议两公开制度进行公示公开。统建项目村成立项目监督小组,做好质量监管和财务监管工作。乡镇政府成立项目建设监督领导小组,派专人指导监督项目实施关键环节,确保项目安全合格,确保改造后的住房节能保温效果大幅提升、村容村貌明显改善居住功能进一步完善。对村级工作开展情况进行监督指导,做好项目申报、审核和逐户验收以及项目推进和信息报送工作。确保年底前全面工,并且全面竣工验收协助村委做好自筹资金收纳和监管、补助资金一卡通发放审核审查。县住房和城乡建设局要择优锁定项目实施村,把农牧民居住条件改善工程与乡村振兴示范点、和美乡村建设项目统筹推进、同步实施,充实和扩展高原美丽城镇、和美乡村、乡村振兴建设内容。加大对农村传统工匠的技术引导,充分发挥传统工匠和乡村建设技能型人才的作用加大传统村落、历史文化名村和传统民居的保护力度。组织项目竣工验收工作,并协助县财政局发放补助资金。

)强化资金监管,加大监督检查。财政局按照相关资金管理规定设立农民居住条件改善工程资金专,做到专款专用分账核算规范使用,并会同相关负责部门做好资金监管工作。按照“资金性质不变、管理渠道不变、统筹使用、各司其职、形成合力”的思路,进一步加强与各项涉农政策和资金的有效衔接,最大限度发挥资金效力。鼓励引导各类社会资金、赠款、对口援助帮扶资金,县级地方配套资金支持农牧民居住条件改善工作。民自建任务完成并验收合格后,财政局将到户奖补资金在15个工作日内通过“一卡通”方式直拨到户。严格执行政策规定和补助标准,严禁截留、挤占和挪用,严禁套取奖补资金。各部门和乡镇按照各自职责做好年度资金使用绩效评价。

)加大政策宣传力度,抓好基础工作。采取多种措施做好对农民居住条件改善工程的宣传工作,加大农民群众对申报程序、政策规定、补助标准、实施方法等内容的知晓度。围绕项目进展、实施效果的经验及做法等及时反映工作动态,展示工作效果。要切实加强基础管理工作,建立健全农民居住条件改善工程档案信息管理机制,实行“一户一档”管理,农户自建项目档案应包括:农户书面申请、入户调查及项目确认表、审核审批表、改造协议、房屋改造前中后照片、质量验收表、奖补资金拨付凭证以及日常现场质量检查记录材料检测合格证、施工单位资质等内容。任务下达后,抓紧落实到村到户名单,动员群众尽早开工建设,确保第一季度形成实物工作量,5月中旬全面开工建设,6月底前实现年内“时间过半、任务过半”,7月底前实现“验收过半、补助过半”,10月底前项目全部竣工验收,11月底前补助资金全部发放到位,圆满完成年度建设任务。

 

:1.同德县民居住条件改善工程指导补助标准

2.同德县2025年农牧民居住条件改善工程建设村

任务分配表

3.农牧民居住条件改善工程效果图 

4.农牧民居住条件改善工程大样图

 

同德县人民政府办公室     202559日印发

附件1

 
同德县农牧民居住条件改善工程指导补助标准

序号

建设内容

技术指标

材料要求

备注

单位

数量

指导价(元)

1

重点类项目

重点类项目补助比例原则上不高于建设总成本的35%。

1.1

住房外墙保温

1.00

170

60厚石墨聚苯板(18kg/㎡)+玻纤网格布+水泥砂浆抹灰+墙裙60公分采用石墨聚苯板一体板+粉刷。

 

1.2

屋顶保温防水

1.00

180

选择符合国家标准(如GB/T 29088-2023)的合成树脂瓦,厚度建议≥2.5mm,确保抗冲击性和耐老化性。表面平整无气泡,颜色均匀,波峰波谷无变形。配套材料:使用厂家提供的专用自攻螺丝(带防水胶垫)、屋脊瓦、封檐板等配件。

 

1.3

被动式太阳能暖廊

1.00

760

 (铝合金)0.7mm,单层双层玻璃自选(农牧户)。

暖廊面积为地面面积

2

引导类项目

引导类项目补助不高于建设总成本的25%的比例予以奖补

2.1

院墙风貌提升改造

1.00

60

院墙粉刷、风貌提升改造

按图施工

 

附件2

 

 

同德县 2025年 民居住条件改善工程 建设村 和任务分配表

序号

乡镇

建设村

统筹项目

任务户数

建设年度

1

唐谷镇

扎血尔村

2025年和美乡村建设项目

100

2025

2

唐谷镇

青迈村

2025年和美乡村建设项目

80

2025

3

唐谷镇

力伦村

2025年和美乡村建设项目

90

2025

4

秀麻乡

豆龙村

2025年和美乡村建设项目

100

2025

5

  秀麻乡

达哇村

2025年和美乡村建设项目

90

2025

6

河北乡

赛羊村

2025年和美乡村建设项目

83

2025

7

巴沟乡

然果村

2025年和美乡村建设项目

21

2025

8

尕巴松多镇

科加村

2024年和美乡村美丽宜居

74

2025

 

附件3

 

 

e21e2b0c006ff271376e9cf6a43aebc
 

 

150533_1747019762_hd

附件4

 

 

同德县农牧民居住条件改善工程建设大样图

 

【打印正文】
分享到:
【字体: 
×

用户登录